新築一戸建て 静岡市駿河区曲金7丁目2号地
所在地
静岡市駿河区曲金7丁目2号地
4,980万円
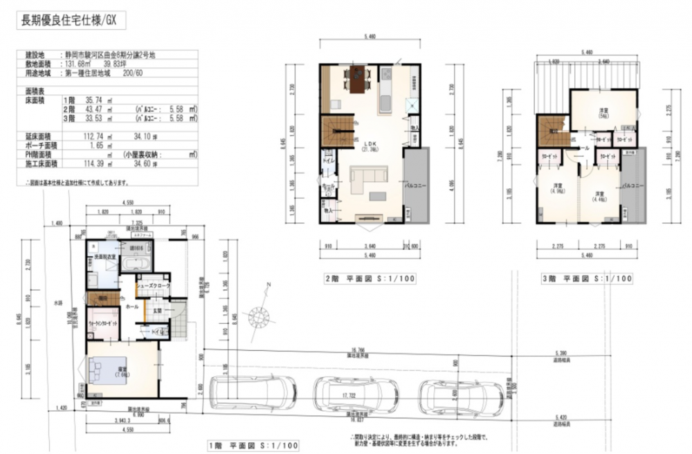
34.10坪
4LDK
スマートハウス
曲金8期
月々の
支払例
支払例
万円
年
%
円
※ろうきん/借入金4,980万円、返済期間35年、金利1.050%変動)の場合
※審査により金利は変わる可能性があります。
物件概要
- 交通
-
JR東海 東静岡駅 まで 徒歩10分
- 接道状況
- 東側 公道5.3m 間口約3.5m
- 土地面積
- 実測 131.68㎡ (39.83坪)
- 建物面積
- 112.74㎡ (34.10坪)
- 築年数
- 2026年 (令和8) 1月 完成予定
- 建ぺい率
- 60%
- 容積率
- 200%
- 土地権利
- 所有権
- 構造および階数
- 木造 地上3階建
- 小学校区
- 西豊田 ( 1000m )
- 中学校区
- 豊田 ( 1300m )
- 私道負担
- 地目
- 宅地
- 現況
- 建築中
- 引渡時期
- 相談
- 駐車場
- 上水道
- 下水道
- ガス
- 都市計画
- 市街化区域
- 用途地域
- 1種住居
- 設備・条件
- システムキッチン、カウンターキッチン、食器洗浄乾燥機、浴室乾燥機、モニタ付インターホン、洗浄便座、追い炊き、床下収納、トイレ2箇所
- 備考
- 取引態様
- 仲介

